房屋 山居名峰幸福宅_全國不動產
房屋資料簡介

- 房屋地址:自強路
- 房屋總價:998 萬元
- 房屋坪數:23.05 坪
- 房屋形態:大樓
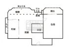
- 房屋格局:2 房 2 廳 1 衛
房屋詳細資訊

- 刊登日期:114-09-08
- 房屋更新日期:115-03-12
- 總價:998 萬元
- 地址:自強路
- 房屋坪數:23.05 坪
- 房屋管理費:1612 元
- 房屋格局:2 房 2 廳 1 衛
- 房屋樓層:3/16(樓層/總樓層)
- 房屋屋齡:30年
- 房屋用途:住宅
- 房屋主建物:16.6 坪
- 房屋附屬建物:3.58 坪
- 房屋形態:大樓
- 房屋公共設施:2.87 坪
- 房屋土地登記:3.36 坪
- 車位有無:
- 房屋座位朝向:座東南朝西北





















